zavřít
náhledy
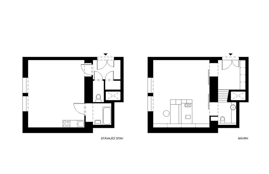
Byt č.1 na Vinohradech: Půdorys
Autor: Lukáš Brom
Byt č.1 na Vinohradech: Průsvitné zasklení.
Autor: Lukáš Brom
Byt č.1 na Vinohradech: Optickému zvětšení pomohlo zrcadlo i vysoké skříně.
Autor: Lukáš Brom
Byt č.1 na Vinohradech: Hlavní obytná místnost obsahuje box s integrovaným spaním, pracovnou i kuchyní. Navíc může být přímo propojena s koupelnou a zádveřím.
Autor: Lukáš Brom
Byt č.1 na Vinohradech: Hlavní obytná místnost obsahuje box s integrovaným spaním, pracovnou i kuchyní. Navíc může být přímo propojena s koupelnou a zádveřím.
Autor: Lukáš Brom
Byt č.1 na Vinohradech: Pod jednou stranou postele se nachází kuchyně.
Autor: Lukáš Brom
Byt č.1 na Vinohradech: Pod druhou stranou je pracovna.
Autor: Lukáš Brom
Byt č.1 na Vinohradech: Kuchyň.
Autor: Lukáš Brom
Byt č.1 na Vinohradech: Koupelna.
Autor: Lukáš Brom
Byt č.1 na Vinohradech: Koupelna.
Autor: Lukáš Brom
Byt č.2 v Michli: Půdorys
Autor: Lukáš Brom
Byt č. 2 v Michli: Zajímavá architektura se nemusí omezovat jen na monumentální stavby. Dokladem jsou dvě povedené rekonstrukce malých pražských bytů.
Autor: Lukáš Brom
Byt č. 2 v Michli: Obývací místnost s kuchyní.
Autor: Lukáš Brom
Byt č. 2 v Michli:Díky posuvnému systému mohou obyvatelé sledovat televizi jak v ložnici, tak v obývací části.
Autor: Lukáš Brom
Byt č. 2 v Michli:Jednoduše řešená koupelna.
Autor: Lukáš Brom
Byt č. 2 v Michli:Spací kajuta oddělená od hlavní místnosti tenkou příčkou.
Autor: Lukáš Brom
Byt č. 2 v Michli:Kuchyň.
Autor: Lukáš Brom
Byt č. 2 v Michli:Kucyň se složeným stolkem.
Autor: Lukáš Brom
Byt č. 2 v Michli:Kuchyň s rozloženým stolkem.
Autor: Lukáš Brom
Hlavní obytná místnost obsahuje box s integrovaným spaním, pracovnou i kuchyní. Navíc může být přímo propojena s koupelnou a zádveřím.
Autor: Lukáš Brom