náhledy
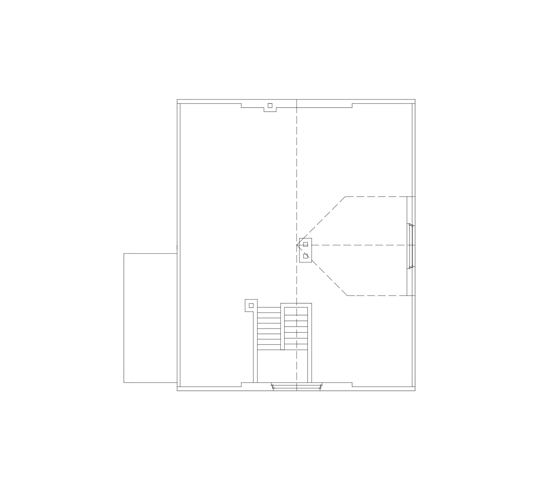
Stav druhého patra před rekonstrukcí.
Druhé patro domu po rekonstrukci.
Podsklepení před rekonstrukcí.
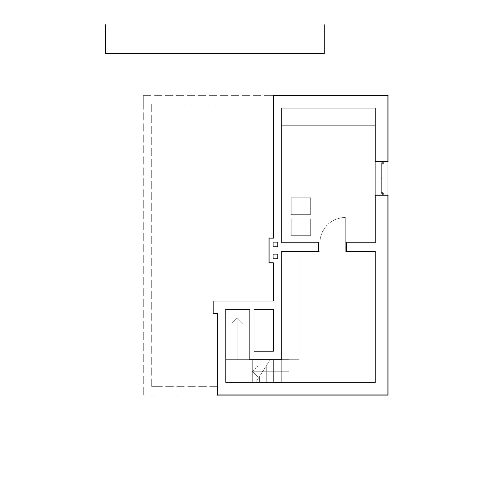
Půdorys podsklepení po rekonstrukci.
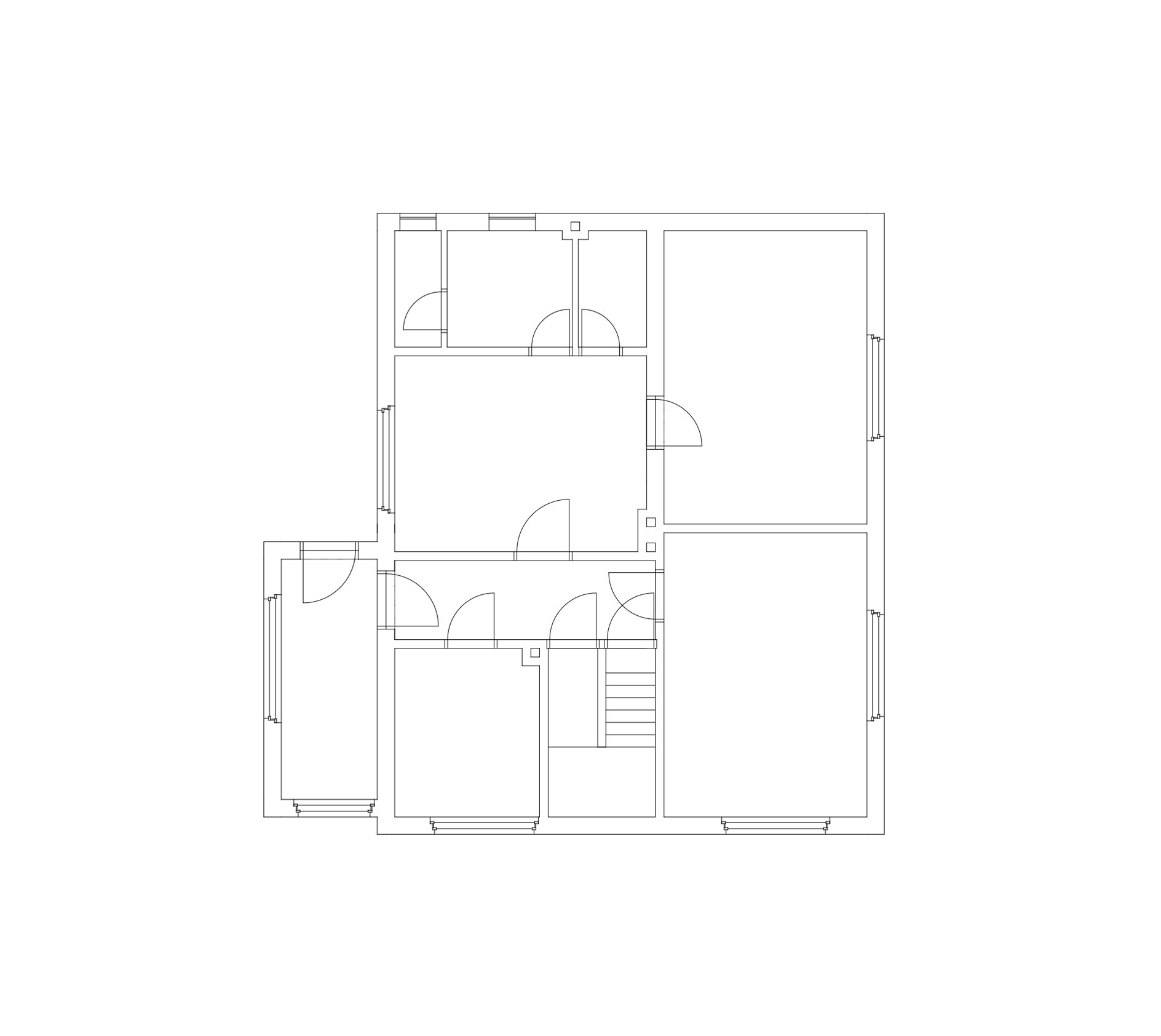
Půdorys prvního patra před rekonstrukcí.
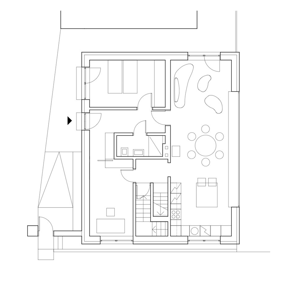
Půdorysní návrh prvního patra.
Původní stav domu.
Autor: Michal Seba
Kyklopské zdivo a nově omítnutá fasáda.
Autor: Michal Seba
Hlavní část domu pokračuje ve venkovní terasu.
Autor: Michal Seba
Dvojokno je sjednoceno dřevěným parapetem a , jeho horizontalita je podtržena LED diodami v překladu
Autor: Michal Seba
Dominantou domu je okno, díky kterému se dům otvírá do krajiny.
Autor: Michal Seba
Rodinný dům ve Žloukovicích po rekonstrukci
Autor: Michal Seba
